Opis nieruchomości
Budynki podkreślą nowoczesną stylistykę, będą przyciągały uwagę i wpisują się w najnowszy trend w architekturze podmiejskiej aglomeracji. Prosta bryła skrywa ciekawą i funkcjonalną powierzchnię użytkową, która sprosta wszystkim potrzebom życia współczesnej rodziny. Wnętrza zostały podzielone na spójne strefy, zapewniając domownikom maksymalny komfort użytkowania mieszkania. Lokale posiadają przestrzeń którą można dopasować na etapie budowy. W mieszkaniach na parterze z salonu jest wyjścia na ogród. Cieplejsze dni, domownicy będą mogli spędzać właśnie tam swój wolny czas. Mieszkania na piętrze posiadają trzy pokoje/sypialnie na piętrze i salon z aneksem kuchennym. Takie rozwiązanie zapewni komfort i swobodę każdemu z domowników. lokale są idealne dla ludzi aktywnych i szukających ciekawej alternatywy dla oderwania się od zgiełku miasta. Połączenie komunikacją miejską do Tarnowa Podgórnego gdzie znajdują się szkoły podstawowe, średnie, sklepy, apteki, banki, restauracje, Tarnowskie termy, Urząd Gminy, kościół i inne usługi niezbędne do komfortowego życia. Dogodne połączenia komunikacyjne ułatwiają szybki dojazd do centrum Poznania. W pobliżu znajdują się: sklepy spożywczy, Świetlica Rumianek z boiskiem i placem zabaw, staw rekreacyjny z plażą.
To miejsce, które łączy zalety życia w przyjaznym środowisku, z komfortem dostępu do wszelkich usług i atrakcji miejskich.
Łatwy dojazd do centrum Poznania ułatwia dwupasmowa droga nr92. Czas dojazdu około 17 minut. Jest też również miejska komunikacja autobusowa.
Lokalizacja: Rumianek, wjazd przy budynku ul. Szkolna 6 – idealne połączenie natury i miasta (współrzędne google maps 52.459021, 16.622170)
Dlaczego warto wybrać naszą ofertę?
- Przestronność i funkcjonalność – przemyślany projekt, mieszkania 60m², które zaspokoją potrzeby każdej rodziny.
- Solidne materiały budowlane
- Nowoczesne wykończenie w stanie deweloperskim – możliwość dostosowania wnętrz do indywidualnych potrzeb.
- Cisza i spokój oraz bezpieczeństwo – osiedle w kameralnej lokalizacji, z dala od miejskiego zgiełku.
- Ogród i garaż co zwiększa komfort życia.
- Idealne połączenie z miastem – szybki dojazd do Poznania i Tarnowa Podgórnego, co umożliwia wygodne codzienne życie i korzystanie z pełnej infrastruktury miejskiej.
- Inwestycja w przyszłość – atrakcyjna cena, nowoczesne wykończenie oraz dynamicznie rozwijająca się okolica sprawiają, że jest to doskonała opcja zarówno do zamieszkania, jak i jako inwestycja na wynajem.
- Tereny rekreacyjne, park, szlak rowerowy
- Centrum handlowe i sklepy w Tarnowie – 2,8 km
- Centrum Swadzim – 11 km
- Poznań (centrum) – 17 minut
- Szkoła podstawowa w Tarnowie Podgórnym – 3,5 km
- Przedszkole – w samym Tarnowie Podgórnym jest 5 przedszkoli – 3,1 km
- Przystanek autobusowy – 0,1 km
- Multikono Stary Browar – 24 km
- Tarnowskie Tężnie (Termy) – 1,9 km
- Port Lotniczy Ławica – 17 km
- Plac zabaw z pięknym stawem 0,5km
- Dworzec Główny PKP w Poznaniu – 23 km
Zapraszamy do kontaktu i na prezentację!
Termin zakończenia
30.06.2026
Standard wykończenia
Fundamenty - ławy fundamentowe żelbetowe, ściany fundamentowe z bloczków betonowych, izolacja ścian fundamentowych styropianem, podłoża posadzek betonowe na podsypkach piaskowych
Ściany zewnętrzne - konstrukcyjne murowane z cegły ceramicznej
Konstrukcja dachu - dach skośny pokryty dachówka BRAS, rynny metalowe ocynkowane
Elewacje - budynek ocieplony warstwą styropianu, z tynkiem mineralnym, malowanym
Konstrukcja stropów - strop betonowy
Schody zewnętrzne – stalowe malowane proszkowo
Stolarka okienna - okna i drzwi balkonowe PCV, szklenie okien trójszybowe, profil sześcio-komorowy, dwukolorowy, parapety zewnętrzne z blachy stalowej powlekanej w kolorze okien
Stolarka drzwiowa - drzwi zewnętrzne
Ściany działowe, sufity, podłogi – ściany działowe pełne, sufity tynk gipsowy maszynowy i GK, posadzki betonowe, zacierane maszynowo, izolacja przeciwwilgociowa, cieplnie styropianem
Przyłączę wodociągowe, gazowe, energetyczne, kanalizacyjne,
Instalacja wod-kan – kompletna instalacja wodna, bez armatur, instalacja kanalizacyjna z rur PCV bez przyborów sanitarnych, 1 licznik wody po podpisaniu umowy, instalacja kanalizacji sanitarnej
Instalacja C.O. i C.W.U - piec gazowy kondensacyjny
Instalacja elektryczna - podtynkowa zgodna z wymogami norm branżowych z 1 licznikiem energii elektrycznej po podpisaniu umowy z ENEA Operator
Instalacje dodatkowe -1 puszka internetowa, 2 gniazda antenowe TV+SAT, całość bez urządzeń aktywnych, łączeniowych oraz anten
Zagospodarowanie terenu wokół budynków - drogi, chodnik i miejsca parkingowe kostka betonowa, opaska dookoła budynku, wyrównanie terenu, opłotowanie ogrodów siatką stalową powlekaną o wys.0,8-1m bez furtek ogrodowych, opłotowanie posesji siatką stalowa powlekana o wys.1,5m
Lokale
M7 - 59,97 m2 - wolne
W cenie garaż + ogródek 37 m2
Cena 418 000 PLN brutto
Najniższa cena z ostatnich 30 dni: 418 000,00 zł
M8 - 60,42 m2 - zarezerwowane
W cenie 1 miejsce postojowe
Dodatkowa możliwość przestrzeni strychowej ok 46 m2
Cena 390 000 PLN brutto
Najniższa cena z ostatnich 30 dni: 390 000,00 zł
M9 - 59,97 m2 - wolne
W cenie garaż + ogródek 37 m2
Cena 415 000 PLN brutto
Najniższa cena z ostatnich 30 dni: 415 000,00 zł
M10 - 60,42 m2 - wolne
W cenie 1 miejsce postojowe
Dodatkowa możliwość przestrzeni strychowej ok 46 m2
Cena 390 000 PLN brutto
Najniższa cena z ostatnich 30 dni: 390 000,00 zł
M11 - 59,97 m2 - wolne
W cenie garaż + ogródek 37 m2
Cena 415 000 PLN brutto
Najniższa cena z ostatnich 30 dni: 415 000,00 zł
M12 - 60,42 m2 - zarezerwowane
W cenie 1 miejsce postojowe
Dodatkowa możliwość przestrzeni strychowej ok 46 m2
Cena 390 000 PLN brutto
Najniższa cena z ostatnich 30 dni: 390 000,00 zł
M13 - 59,97 m2 - wolne
W cenie garaż + ogródek 37 m2
Cena 415 000 PLN brutto
Najniższa cena z ostatnich 30 dni: 415 000,00 zł
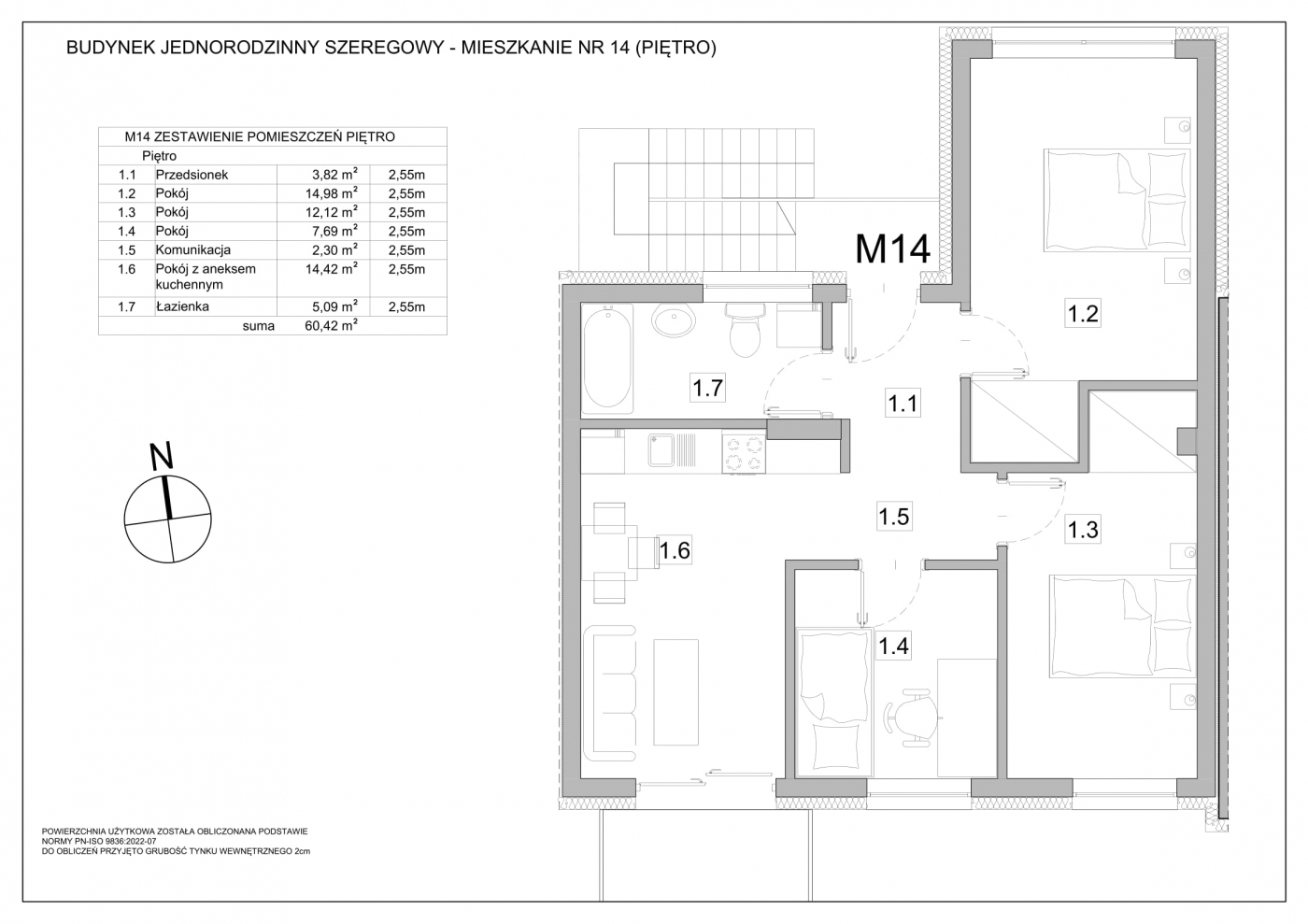
M14 - 60,42 m2 - wolne
W cenie 1 miejsce postojowe
Dodatkowa możliwość przestrzeni strychowej ok 46 m2
Cena 390 000 PLN brutto
Najniższa cena z ostatnich 30 dni: 390 000,00 zł
M15 - 59,97 m2 - wolne
W cenie garaż + ogródek 37 m2
Cena 415 000 PLN brutto
Najniższa cena z ostatnich 30 dni: 415 000,00 zł
M16 - 60,42 m2 - wolne
W cenie 1 miejsce postojowe
Dodatkowa możliwość przestrzeni strychowej ok 46 m2
Cena 390 000 PLN brutto
Najniższa cena z ostatnich 30 dni: 390 000,00 zł
M17 - 59,97 m2 - sprzedane
W cenie garaż + ogródek 63 m2
Cena 425 000 PLN brutto
Najniższa cena z ostatnich 30 dni: 425 000,00 zł
Pliki do pobrania
Lokalizacja nieruchomości
Zainteresowała Cię nasza oferta?
Skontaktuj się z nami: uzupełnij formularz, lub zadzwoń
