
Opis nieruchomości
Budynki podkreślą nowoczesną stylistykę, będą przyciągały uwagę i wpisują się w najnowszy trend w architekturze podmiejskiej aglomeracji. Prosta bryła skrywa ciekawą i funkconalną powierzchnię użytkową, która sprosta wszystkim potrzebom życia współczesnej rodziny. Wnętrza zostały podzielone na spójne strefy, zapewniając domownikom maksymalny komfort użytkowania domu. Lokale posiadają przestrzeń którą można doposować na etapie budowy. Z salonu i kuchni są wyjścia na ogród. Cieplejsze dni, domownicy będą mogli spędzać właśnie tam swój wolny czas. Lokale posiadają dodatkowe cztery pokoje/sypialnie na piętrze. Takie rozwiązanie zapewni komfort i swobodę każdemu z domowników. lokale są idealne dla ludzi aktywnych i szukających ciekawej alternatywy dla oderwania się od zgiełku miasta. Połączenie komunikacją miejską do Tarnowa Podgórnego gdzie znajdują się szkoły podstawowe, średnie, sklepy, apteki, banki, restauracje, Tarnowskie termy, Urząd Gminy, kościół i inne usługi niezbędne do konfortowego życia. Dogodne połączenia komunikacyjne ułatwiają szybki dojazd do centrum Poznania. W pobliżu znajdują się: sklepy spożywczy, Świetlica Rumianek z boiskiem i placem zabaw, staw rekracyjny z plażą.
To miejsce, które łączy zalety życia w przyjaznym środowisku, z komfortem dostępu do wszelkich usług i atrakcji miejskich.
Łatwy dojazd do centrum Poznania ułatwia dwupasmowa droganr 92 . Czas dojazdu około 17 minut. Jest też również miejska komunikacja autobusowa.
Lokalizacja: Rumianek, wjazd przy budynku ul. Szkolna 6 – idealne połączenie natury i miasta (współrzędne google maps 52.459021, 16.622170)
Dlaczego warto wybrać naszą ofertę?
- Przestronność i funkcjonalność – przemyślany projekt, domy o powierzchni 106m², które zaspokoją potrzeby każdej rodziny.
- Solidne materiały budowlane
- Nowoczesne wykończenie w stanie deweloperskim – możliwość dostosowania wnętrz do indywidualnych potrzeb.
- Cisza i spokój oraz bezpieczeństwo – osiedle w kameralnej lokalizacji, z dala od miejskiego zgiełku.
- Ogród i garaż co zwiększa komfort życia.
- Idealne połączenie z miastem – szybki dojazd do Poznania i Tarnowa Podgórnego, co umożliwia wygodne codzienne życie i korzystanie z pełnej infrastruktury miejskiej.
- Inwestycja w przyszłość – atrakcyjna cena, nowoczesne wykończenie oraz dynamicznie rozwijająca się okolica sprawiają, że jest to doskonała opcja zarówno do zamieszkania, jak i jako inwestycja na wynajem.
- Tereny rekreacyjne, park, szlak rowerowy
- Centrum handlowe i sklepy w Tarnowie – 2,8 km
- Centrum Swadzim – 11 km
- Poznań (centrum) – 17 minut
- Szkoła podstawowa w Tarnowie Podgórnym – 3,5 km
- Przedszkole – w samym Tarnowie Podgórnym jest 5 przedszkoli – 3,1 km
- Przystanek autobusowy – 0,1 km
- Multikono Stary Browar – 24 km
- Tarnowskie Tężnie (Termy) – 1,9 km
- Port Lotniczy Ławica – 17 km
- Plac zabaw z pięknym stawem 0,5km
- Dworzec Główny PKP w Poznaniu – 23 km
Zapraszamy do kontaktu i na prezentację!
Termin zakończenia
30.12.2025
Standard wykończenia
Fundamenty - ławy fundamentowe żelbetowe, ściany fundamentowe z bloczków betonowych, izolacja ścian fundamentowych styropianem, podłoża posadzek betonowe na podsypkach piaskowych
Ściany zewnętrzne - konstrukcyjne murowane z cegły ceramicznej
Konstrukcja dachu - dach skośny pokryty dachówka, rynny metalowe ocynkowane
Elewacje - budynek ocieplony warstwą styropianu, z tynkiem mineralnym, malowanym
Konstrukcja stropów - strop betonowy
Schody wewnętrzne – żelbetowe, prefabrykowane
Stolarka okienna - okna i drzwi balkonowe PCV, szklenie okien trójszybowe, profil sześcio-komorowy, dwukolorowy, parapety zewnętrzne z blachy stalowej powlekanej w kolorze okien
Stolarka drzwiowa - drzwi zewnętrzne
Ściany działowe, sufity, podłogi – ściany działowe pełne, sufity tynk gipsowy maszynowy, posadzki betonowe, zacierane maszynowo, izolacja przeciwwilgociowa, cieplnie styropianem
Przyłączę wodociągowe, gazowe, energetyczne, kanalizacyjne,
Instalacja wod-kan – kompletna instalacja wodna, bez armatur, instalacja kanalizacyjna z rur PCV bez przyborów sanitarnych, 1 licznik wody po podpisaniu umowy, instalacja kanalizacji sanitarnej
Instalacja C.O. i C.W.U - piec gazowy kondensacyjny
Instalacja elektryczna - podtynkowa zgodna z wymogami norm branżowych z 1 licznikiem energii elektrycznej po podpisaniu umowy z ENEA Operator
Instalacje dodatkowe -1 puszka internetowa, 2 gniazda antenowe TV+SAT, całość bez urządzeń aktywnych, łączeniowych oraz anten
Zagospodarowanie terenu wokół budynków - drogi, chodnik i miejsca parkingowe kostka betonowa, opaska dookoła budynku, wyrównanie terenu, opłotowanie ogrodów siatką stalową powlekaną o wys.0,8-1m bez furtek ogrodowych, opłotowanie posesji siatką stalowa powlekana o wys.1,5m bez bramy wjazdowej
Dodatkowa przestrzeń strychowa ok 54m2
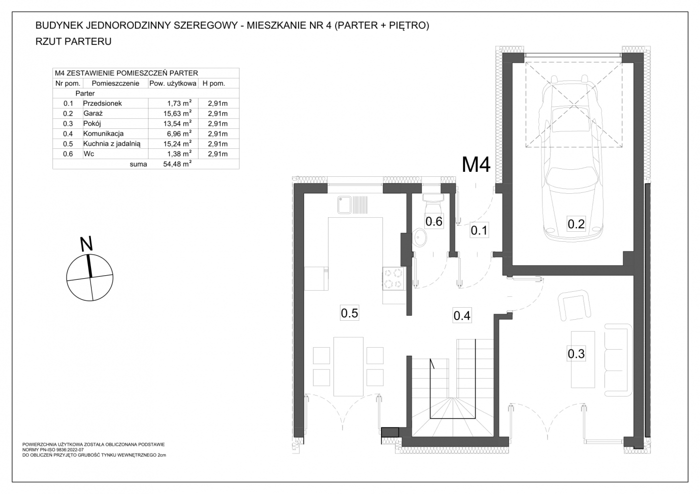
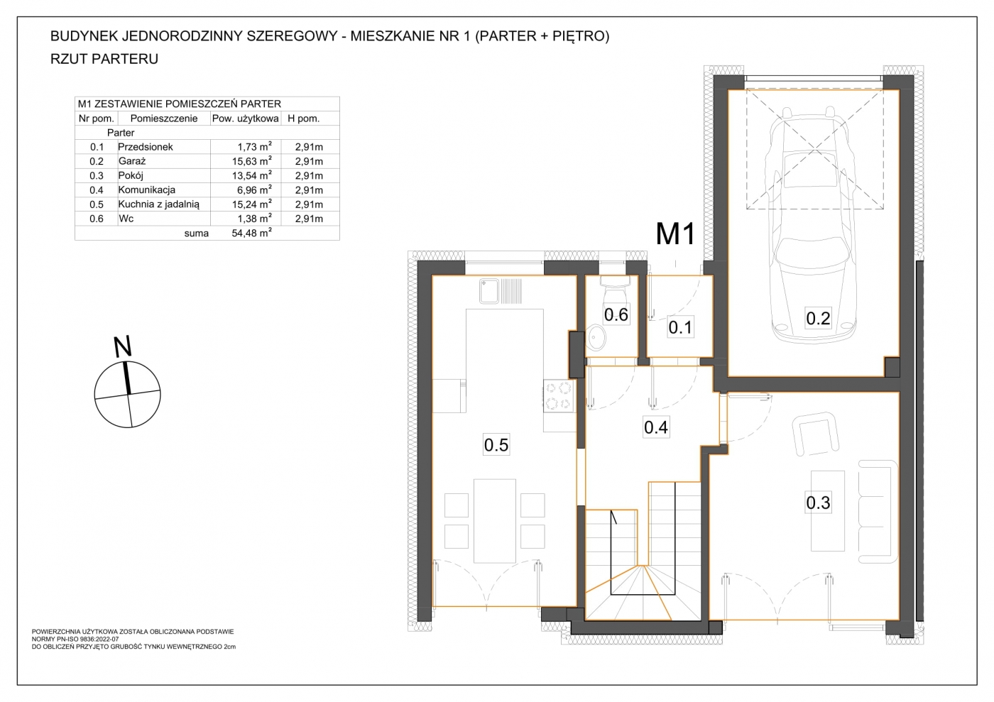
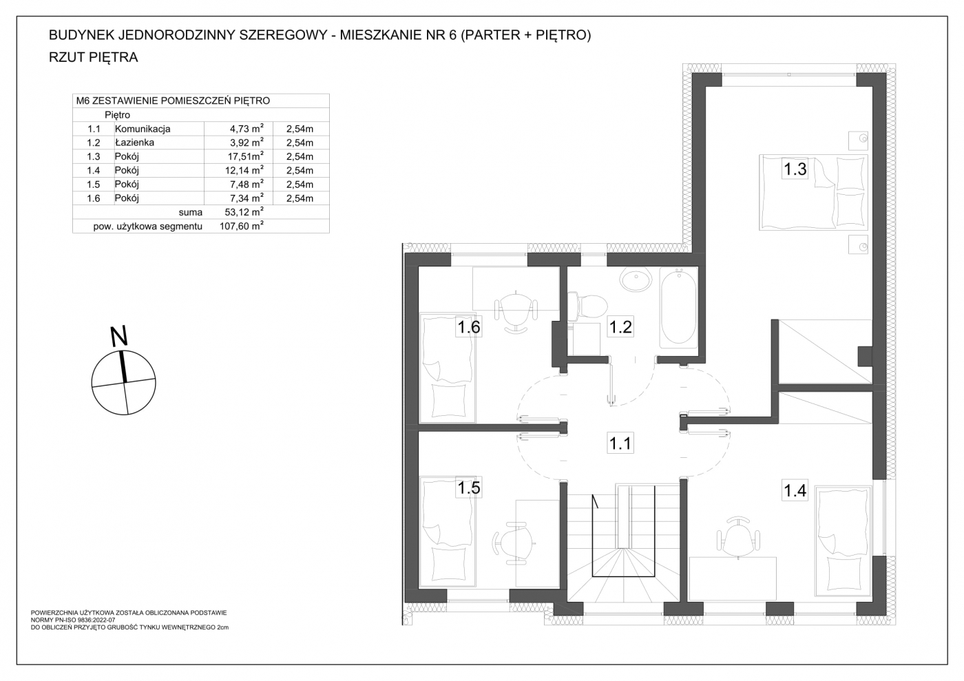
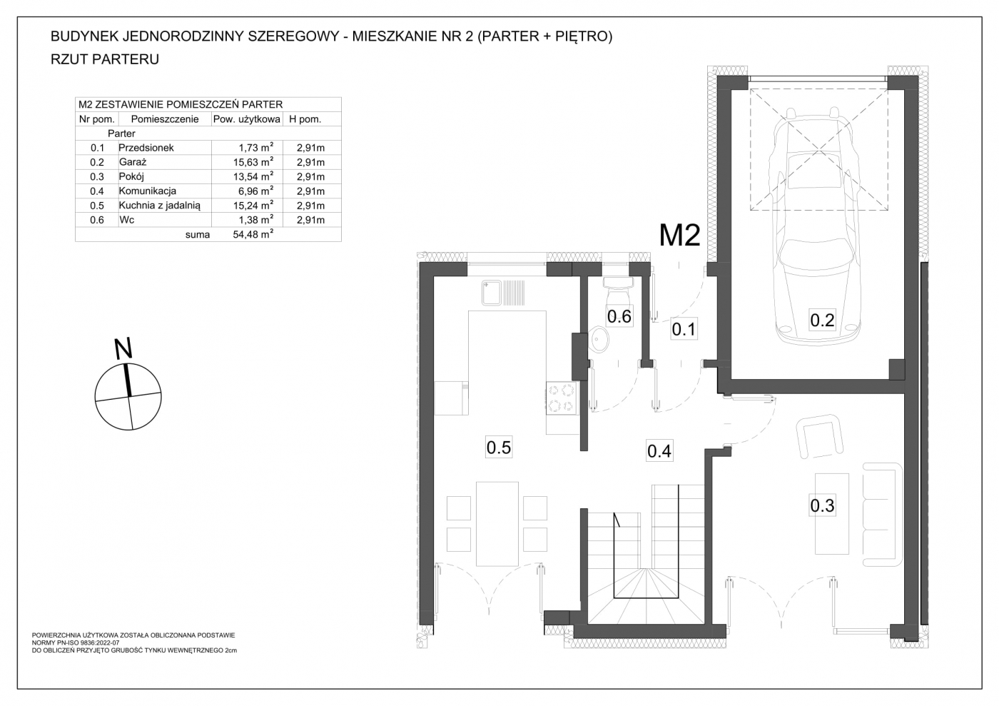
Mieszkania
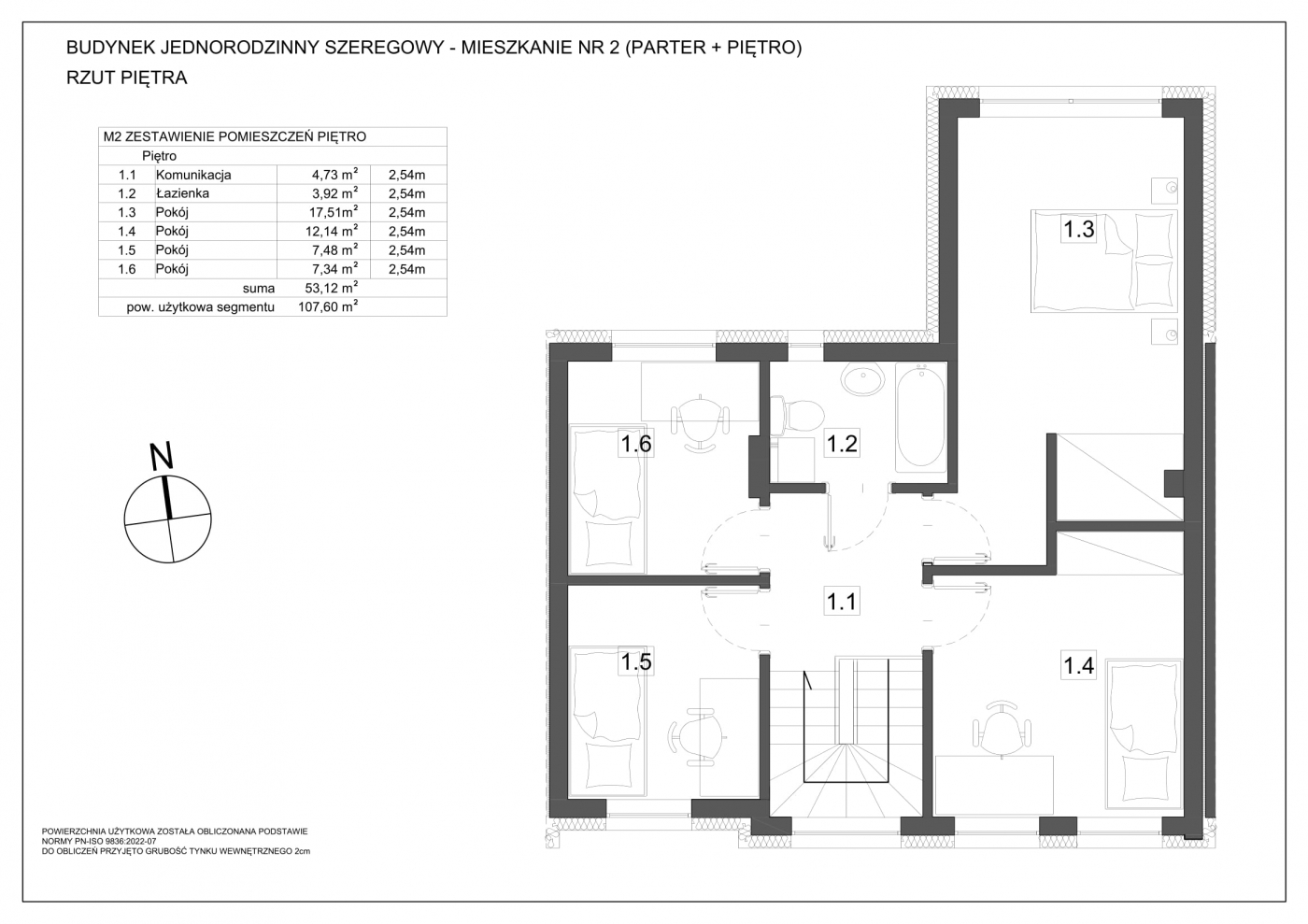
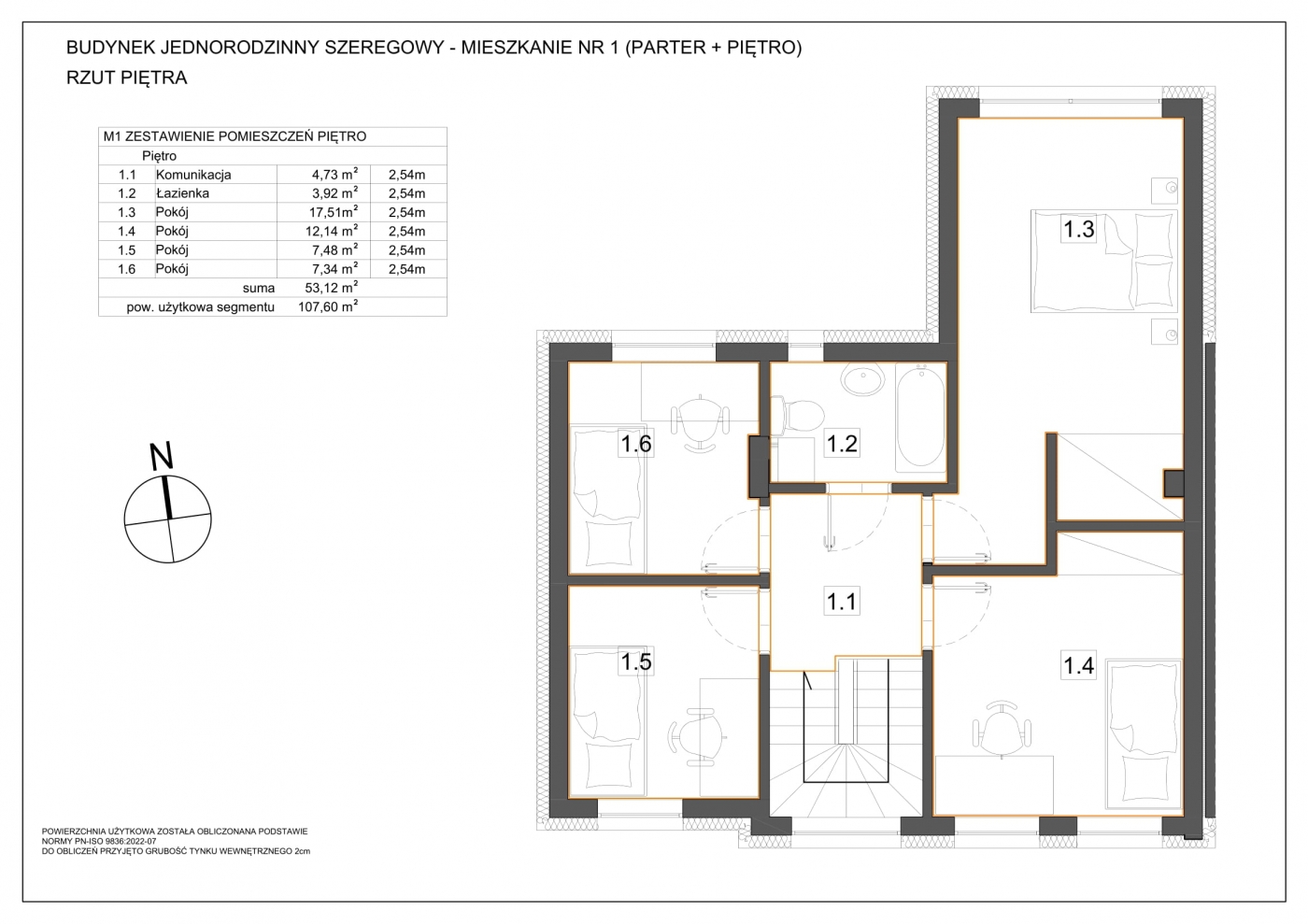
M1 - 107,60 m2 - wolne
W cenie garaż + 1 miejsce postojowe
Ogródek 84m2
Dodatkowa możliwość przestrzeni strychowej ok 54 m2
Cena 710 000 PLN brutto
Najniższa cena z ostatnich 30 dni: 710 000,00 zł
M2 - 107,60 m2 - wolne
W cenie garaż + 1 miejsce postojowe
Ogródek 55m2
Dodatkowa możliwość przestrzeni strychowej ok 54 m2
Cena 690 000 PLN brutto
Najniższa cena z ostatnich 30 dni: 690 000,00 zł
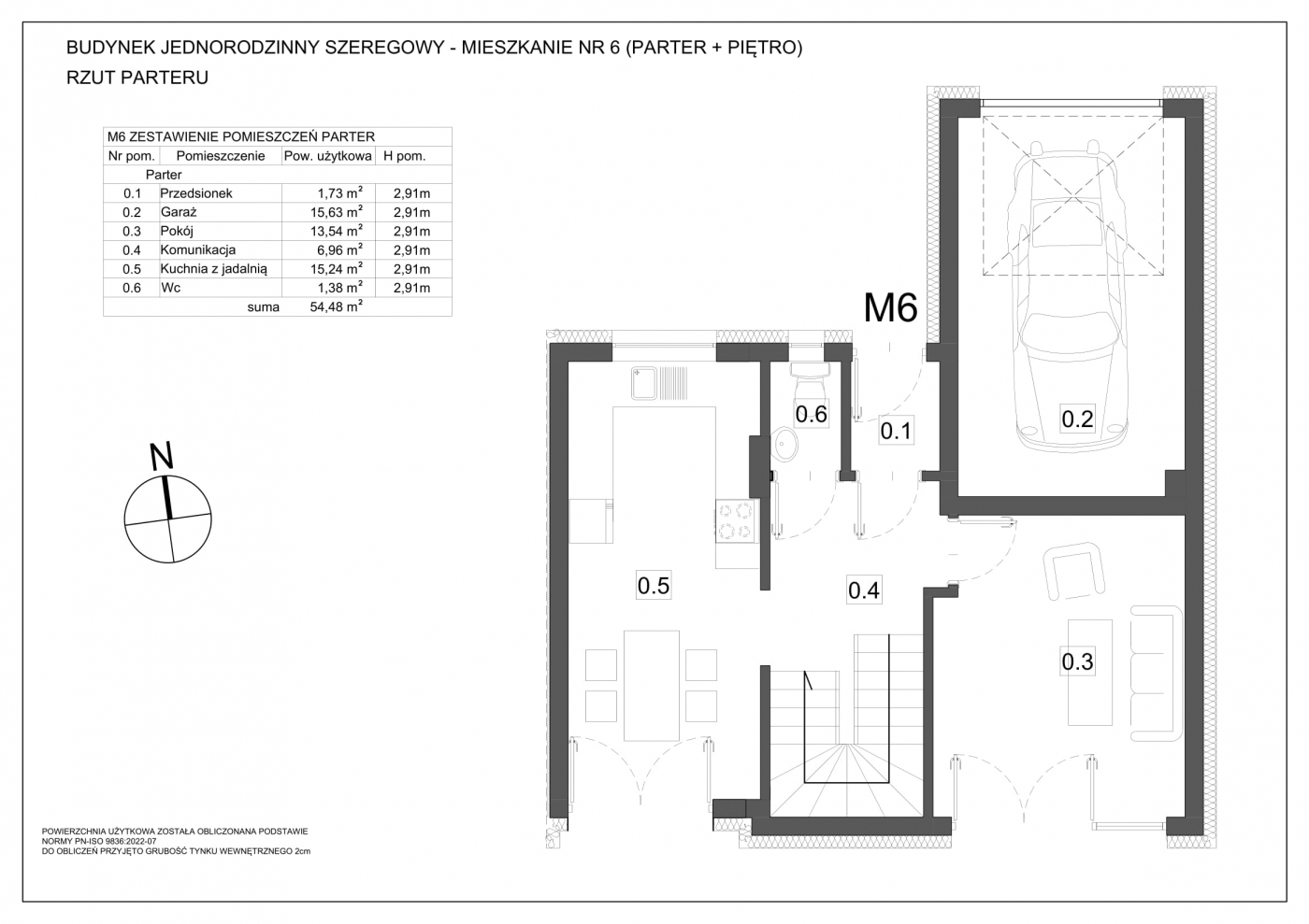
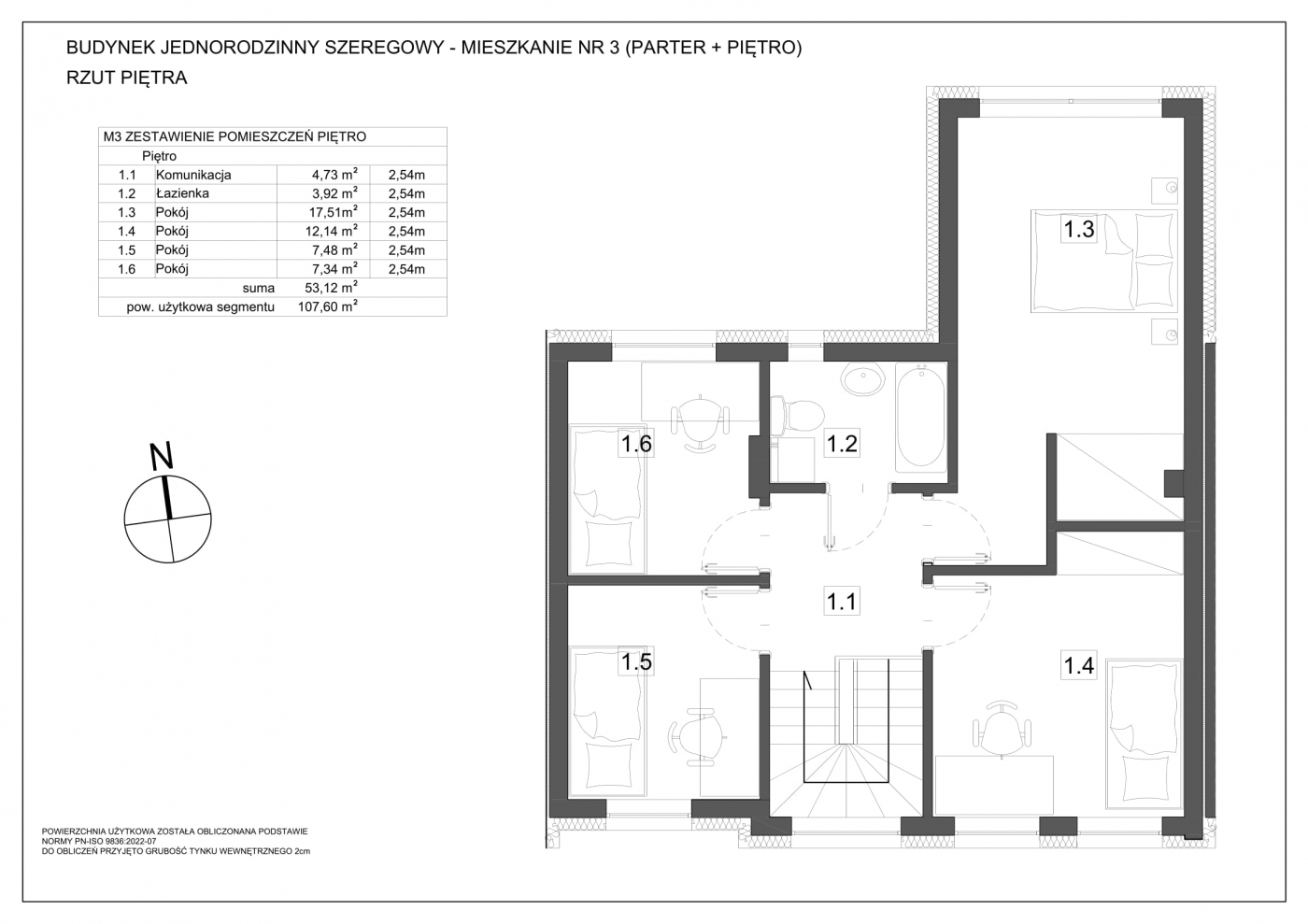
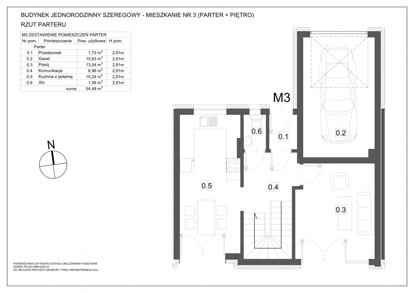
M3 - 107,60 m2 - wolne
W cenie garaż + 1 miejsce postojowe
Ogródek 55m2
Dodatkowa możliwość przestrzeni strychowej ok 54 m2
Cena 690 000 PLN brutto
Najniższa cena z ostatnich 30 dni: 690 000,00 zł
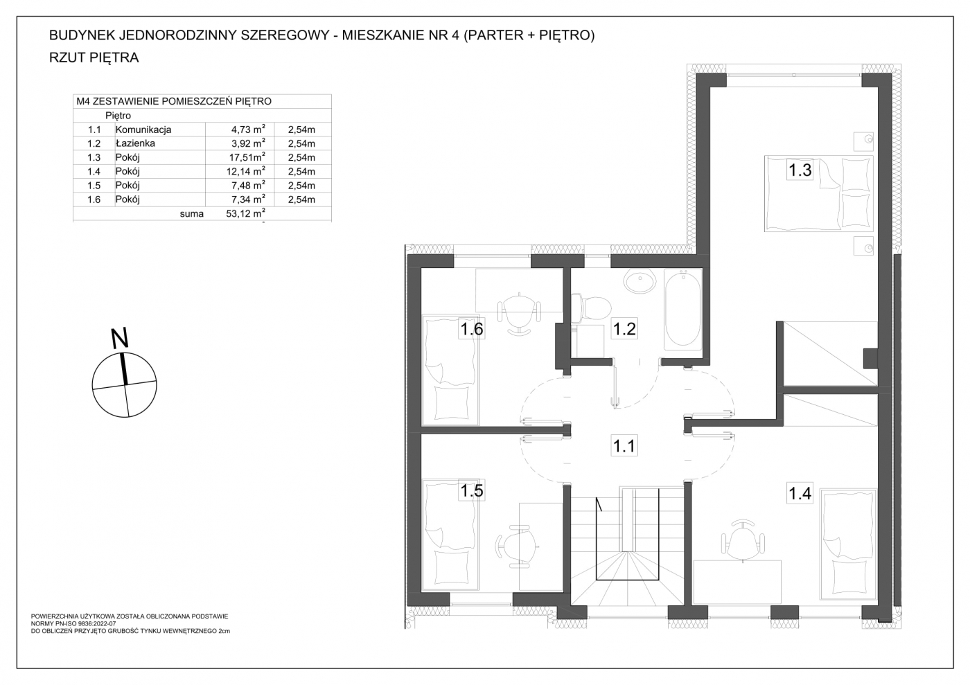
M4 - 107,60 m2 - wolne
W cenie garaż + 1 miejsce postojowe
Ogródek 55m2
Dodatkowa możliwość przestrzeni strychowej ok 54 m2
Cena 690 000 PLN brutto
Najniższa cena z ostatnich 30 dni: 690 000,00 zł
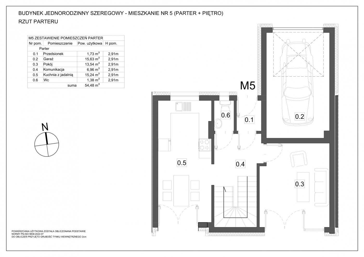
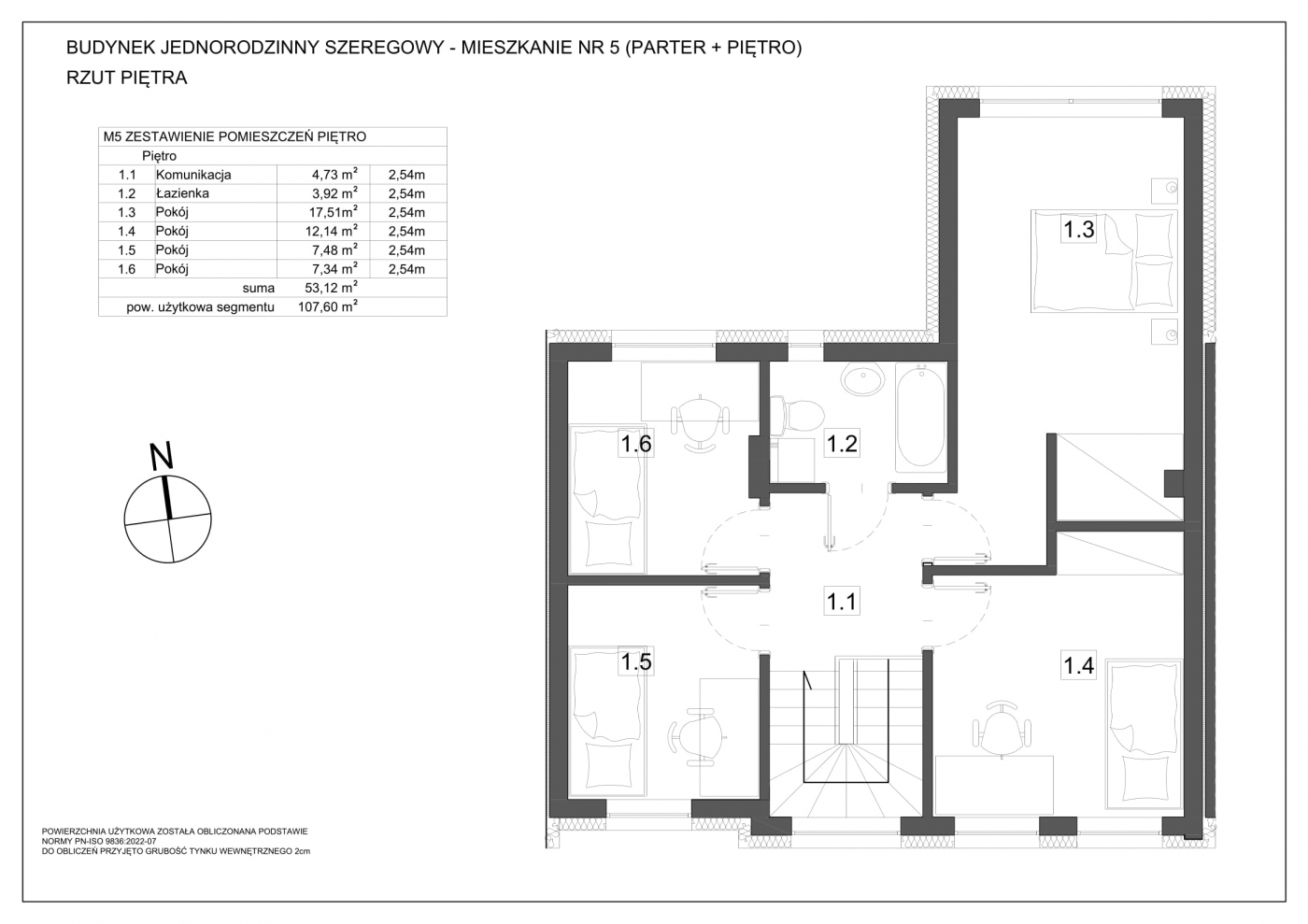
M5 - 107,60 m2 - wolne
W cenie garaż + 1 miejsce postojowe
Ogródek 55m2
Dodatkowa możliwość przestrzeni strychowej ok 55 m2
Cena 690 000 PLN brutto
Najniższa cena z ostatnich 30 dni: 690 000,00 zł